


CONTENTS
6. SUMMARY OF MONITORING EXCEEDANCE, COMPLAINTS, NOTIFICATION OF SUMMONS AND PROSECUTIONS............................................................................................................................................................................ 20
Appendix A Master Programme
Appendix B Overview of Desalination Plant in Tseung Kwan O
Appendix C Summary of Implementation
Status of Environmental Mitigation
Appendix D Impact Monitoring Schedule
of the Reporting Month (Blank)
Appendix E Event/Action Plan for Noise Exceedance
Appendix F Noise Monitoring Equipment
Calibration Certificate (Blank)
Appendix G Event/Action Plan for Water Quality Exceedance
Appendix H Waste Flow
Table
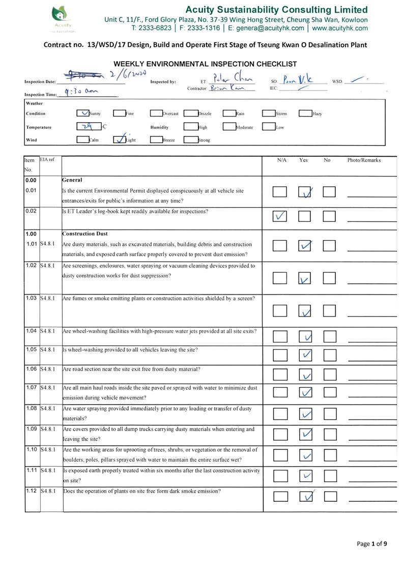
Appendix I Site Inspection Proforma
Appendix J Complaint Log
Appendix K Impact Monitoring Schedule of Next Reporting Month (Blank)
INTRODUCTION
A1. The Project, Design, Build and Operate First Stage of Tseung Kwan O Desalination Plant (TKODP), is a Designated Project under the Environmental Impact Assessment Ordinance (Cap. 499) (EIAO) and is currently governed by a Further Environmental Permit (EP No. FEP - 01/503/2015/A) for the construction and operation of the Project.
A2. In accordance with the Updated Environmental Monitoring and Audit (EM&A) Manual for the Project, EM&A works for marine water quality, noise, waste management and ecology should be carried out by Environmental Team (ET), Acuity Sustainability Consulting Limited (ASCL), during the construction phase of the Project.
A3. This is the 4th Monthly EM&A Report, prepared by ASCL, for the Project summarizing the monitoring results and audit findings of the EM&A programme at and around Tseung Kwan O Area 137 (TKO 137) during the reporting period from 1 June 2020 to 30 June 2020.
A4. The EM&A programme for this contract has covered environmental monitoring on construction noise level at selected NSRs and Contractor¡¦s environmental performance auditing in the aspects of construction dust, construction noise, water quality, waste management, Landscape and Visual and Ecology.
SUMMARY OF MAIN WORKS UNDERTAKEN & KEY MITIGATION MEASURES IMPLEMENTED
A5. Key activities carried out in this reporting period for the Project included the following:
-
Land Survey;
-
Ground
Levelling;
-
Access
Road Construction;
-
Site office formation
work
and footing;
-
Site office¡¦s roof waterproofing and internal
E&M installation;
-
Construction of 132kV
substation;
-
Construction of Temp 11kV
substation and drawpits / ducting;
-
Pre-boring
for
combine shaft and installation of sheeppiles;
-
Excavation
and formation
for ActiDAFF;
-
Erection of hoarding around
site office;
-
Installation
of temporary
watermain.
A6. The major environmental impacts brought by the above construction works include:
-
Construction dust
and noise generation from
the ground
investigation works, access
road construction and site office formation;
-
Waste
generation from the construction activities
A7. The key environmental mitigation measures implemented for the Project in this reporting
period associated with the above construction works include:
-
Dust suppression
by regular
wetting and water spraying for construction
works
-
Reduction
of noise from equipment and machinery
on-site
-
Sorting
and storage of general
refuse and construction waste
SUMMARY OF EXCEEDANCE & INVESTIGATION & FOLLOW-UP
A8. No noise monitoring was conducted during the reporting period since there are no project- related construction activities undertaken within a radius of 300m from the monitoring locations. No project-related exceedance of the Action Level was recorded during the reporting period.
A9. No water quality monitoring was conducted in the reporting month since the commencement of marine construction and dredging activities for the Project are scheduled in November 2020 the earliest. No project-related exceedance of the Action Level was recorded during the reporting period.
A10.Weekly site inspections of the construction work by ET were carried out on 2, 8, 17, 23 & 30 June 2020 to audit the mitigation measures implementation status. Bi-weekly joint site inspection was carried out on 17 & 30 June 2020 by ET and IEC. Observations were recorded in the site inspection checklists and provided to the contractors together with the appropriate follow-up actions where necessary.
COMPLAINT HANDLING AND PROSECUTION
A11.No project-related environmental complaint was received during the reporting period. A12.Neither notifications of summons nor prosecution was received for the Project.
REPORTING CHANGE
A13.There was no change to be reported that may affect the on-going EM&A programme.
SUMMARY OF UPCOMING KEY ISSUES
AND KEY MITIGATION MEASURES
A14.Key activities anticipated in the next reporting period for the Project will include the following:
-
Land Survey;
-
Ground
Levelling;
-
Access
Road Construction;
-
Site office¡¦s roof waterproofing and internal
E&M installation;
-
Construction of 132kV
substation;
-
Construction of Temp 11kV
substation and drawpits
/ ducting;
-
Pre-boring
for
combine shaft and installation of sheeppiles;
-
Excavation
and formation
for ActiDAFF and RO;
-
Erection of hoarding around
site office;
-
Installation
of temporary
watermain;
-
Excavation
and installation of temporary
soil nail for Product
Water Tank;
-
Installation
of tower
cranes.
A15.The major environmental impacts brought by the above construction works will include:
-
Construction dust and noise generation from GI works, access road construction and site office formation work;
-
Waste
generation from construction activities
A16. The key environmental mitigation measures for the Project in the coming reporting period associated with the above construction works will include:
-
Dust suppression
by regular
wetting and water spraying for construction
works
-
Reduction
of noise from equipment and machinery
on-site
-
Sorting
and storage of general
refuse and construction waste
1.
BASIC PROJECT INFORMATION
The Jardine Engineering Corporation, Limited, China State Construction Engineering (Hong Kong) Limited and Acciona Agua, S.A. Trading As AJC Joint Venture (AJCJV) is contracted to carry out the Design, Build and Operate First Stage of Tseung Kwan O Desalination Plant (DPTKO) under Contract No. 13/WSD/17 (the Project).
Acuity Sustainability Consulting Limited (ASCL) is commissioned by AJCJV to undertake the Environmental Team (ET) services as required and/or implied, both explicitly and implicitly, in the Environmental Permit (EP), Environmental Impact Assessment Report (EIA Report) (Register No. AEIAR-192/2015) and Environmental Monitoring and Audit Manual (EM&A Manual) for the Project; and to carry out the Environmental Monitoring and Audit (EM&A) programme in fulfillment of the EIA Report¡¦s EM&A requirements and Contract No. 13/WSD/17 Specification requirements.
Pursuant to the Environmental Impact Assessment Ordinance (EIAO), the Director of Environmental Protection granted the Environmental Permit (No. EP-01/503/2015) and Variation of Environmental Permit (No. EP-01/503/2015/A) to Water Supplies Department (WSD); and granted the Further Environmental Permit (No. FEP-01/503/2015/A) to AJCJV for the Project.
1.2.
THE REPORTING SCOPE
This is the 4th Monthly EM&A Report for the Project which summarizes the key findings of the EM&A programme during the reporting period from 1 June to 30 June 2020.
1.3.
PROJECT ORGANIZATION
The Project Organization structure for Construction Phase is presented in Figure 1.1.

Figure 1.1 Project Organization
Chart
Contact
details of the key personnel are presented in Table 1.1 below:
Table 1.1 Contact Details
of Key
Personnel
|
Party |
Position |
Name |
Telephone no. |
|
Project Proponent |
SE/CM2 |
Benny Lam |
2634-3573 |
|
Supervising Officer (Black &
Veatch) |
Project Manager |
Christina Ko |
2608-7302 |
|
Chief Resident Engineer |
Roger Wu |
6343-1002 |
|
|
The Jardine Engineering
Corporation, Limited,
China State Construction Engineering (Hong
Kong) Limited and Acciona
Agua, S.A. Trading |
Project Manager |
Stephen Yeung |
2807-4665 |
|
Environmental Monitoring Manager |
Brian Kam |
9456-9541 |
|
|
Acuity Sustainability Consulting
Limited |
Environmental Team Leader |
Jacky Leung |
2698-6833 |
|
ANewR Consulting Limited |
Independent Environmental Checker (IEC) |
Adi Lee |
2618-2831 |
1.4.SUMMARY OF CONSTRUCTION WORKS
Details of the major construction activities undertaken in this reporting period are shown in below. The construction programme is presented in Appendix A.
Key activities carried out in this reporting period for the Project included the following:
-
Plate
Load Test;
-
Land Survey;
-
Ground
Levelling;
-
Ground
Investigation;
-
Access
Road Construction;
-
Site office formation
work
and footing;
-
Earth mat installation at 132kV substation;
-
Construction of 132kV
substation footing;
-
Construction of Temp
11kV substation;
-
Ducts laying for temp 11kV substation;
-
Excavation
for combined shaft.
1.5.SUMMARY OF ENVIRONMENTAL STATUS
A summary of the valid permits, licences, and /or notifications on environmental protection for this Project is presented in Table 1.2.
Table 1.2 Summary of
the Status of Valid Environmental Licence,
Notification, Permit and Documentations
|
Permit/ Licenses/ Notification |
Reference |
Validity Period |
Remarks |
|
Environmental Permit |
FEP ¡V
01/503/2015/A |
Throughout the Contract |
|
|
Notification of |
Ref. No.: 451539 |
30/12/2019 ¡V |
|
|
Construction Works |
30/03/2023 |
||
|
under the Air Pollution |
|||
|
Control (Construction |
|||
|
Dust) Regulation (Form |
|||
|
NA) |
|||
|
Wastewater Discharge Licence |
- |
- |
Under Application |
|
Chemical Waste Producer Registration |
5213-839-A2987-01 |
Throughout the Contract |
|
|
Construction Noise |
GW-RE0249-20 |
09/04/2020 ¡V |
GW-RE0249-20 was |
|
Permit (24 hours) |
08/10/2020 |
superseded by GW- |
|
|
GW-RE0474-20 |
04/06/2020 ¡V 03/12/2020 |
RE0474-20. |
|
|
Billing Account for Disposal of Construction
Waste |
7036276 |
Throughout the Contract |
|
The status for all environmental aspects is presented in Table 1.3.
Table 1.3 Summary of
Status for Key Environmental Aspects
under the Updated EM&A Manual
|
Parameters |
Status |
|
Water Quality |
|
|
Baseline Monitoring under EM&A Manual |
The baseline
water quality monitoring was conducted between 12 May 2020
to 6 Jun 2020 |
|
Impact Monitoring |
The impact water
quality monitoring has been
scheduled after the commencement of marine construction works |
|
Noise |
|
|
Baseline Monitoring |
The baseline
noise monitoring result
has been reported in Baseline Monitoring Report
and submitted to EPD under EP Condition 3.4 |
|
Impact Monitoring |
On-going |
|
Waste Management |
|
|
Mitigation Measures in Waste
Monitoring Plan |
On-going |
|
Environmental Audit |
|
|
Site Inspection
covering Measures of Air Quality,
Noise Impact, Water
Quality, Waste,
Ecological Quality, Fisheries, Landscape
and Visual |
On-going |
The impact monitoring schedule for the reporting month to be shown at Appendix D is intentionally left blank since no impact monitoring was conducted in the reporting month.
Other than the EM&A work by ET, environmental briefings, trainings and regular environmental management meetings were conducted, in order to enhance environmental awareness and closely monitor the environmental performance of the contractors.
The EM&A programme has been implemented in accordance with the recommendations presented in the approved EIA Report and the EM&A Manual. A summary of implementation status of the environmental mitigation measures for the construction phase of the Project during the reporting period is provided in Appendix C.
2.
NOISE
To ensure no adverse noise impact, noise monitoring is recommended to be carried out within 300m radius from the nearby noise sensitive receivers (NSRs), during construction phase. The NSRs selected as monitoring station are (i) NSR4 ¡V Creative Secondary School, (ii) NSR24 ¡V PLK Laws Foundation College, and (iii) NSR31 ¡V School of Continuing and Professional Studies ¡V CUHK respectively.
In accordance with the EM&A Manual, baseline noise level at the noise monitoring stations were established as presented in the Baseline Monitoring Report. Impact noise monitoring will be conducted once per week in the form of 30-minutes measurements Leq, L10 and L90 levels recorded at each monitoring station between 0700 and 1900 hours on normal weekdays.
Referring to EM&A manual Section 4.1.2, the impact noise monitoring should be carried out at all the designated monitoring stations when there are project-related construction activities undertaken within a radius of 300m from the monitoring stations.
No impact monitoring for noise impact was conducted in the reporting month due to the overly distant monitoring station from the works location, where they were farther than 1 km from the closet monitoring station NSR4 to the works location.
Impact noise monitoring will be conducted weekly in the reporting period between 0700-1900 hours on normal weekdays. No construction works were carried out during 1900-0700 hours in all days or any time on Sundays or general holidays during the reporting period.
Construction noise level measured in terms of the A-weighted equivalent continuous sound pressure level (LAeq). Leq 30min was used as the monitoring parameter for the time period between 0700 and 1900 hours on normal weekdays. Table 2.1 summarizes the monitoring parameters, frequency and duration of the impact noise monitoring.
Table 2.1 Noise Monitoring Parameters, Time, Frequency and Duration
|
Time |
Duration |
Interval |
Parameters |
||
|
Daytime: 0700-1900 hrs |
Day time: 0700-1900 hrs (during normal weekdays) |
Continuously in Leq 5min/Leq 30min (average of 6 consecutive Leq 5min) |
Leq 30min L10 30min |
& L90 |
30min |
2.2.
MONITORING LOCATIONS
The monitoring locations should normally be made at a point 1m from the exterior of the NSRs building façade and be at a position 1.2m above the ground. A correction of +3dB(A) should be made to the free-field measurements.
According to the environmental findings detailed in the EIA report and Baseline Monitoring Report, the designated locations for the construction noise monitoring are listed in Table 2.2 below.
Table 2.2 Noise Sensitive Receivers
|
NSR ID |
Noise Sensitive Receivers |
Monitoring Location |
Position |
|
NSR 4 |
Creative Secondary School |
Roof Floor |
1 m from facade |
|
NSR 24 |
PLK Laws Foundation College |
Pedestrian Road on Ground Floor |
Free-field |
|
NSR 31 |
School of Continuing and Professional Studies
- CUHK |
Roof Floor |
1 m from facade |
The monitoring locations should normally be made at a point 1m from the exterior of the NSRs building façade and be at a position 1.2m above the ground. A correction of +3dB(A) should be made to the free-field measurements. Three noise monitoring locations for impact monitoring at the nearby sensitive receivers are shown in Figure 2.1-2.3.
|
|
|
|
|
|
Figure 2.1
NSR4 Creative Secondary School |
|
|
|
|
|
|
|
Figure 2.2
NSR24 PLK Laws Foundation College |
|
|
|
|
|
|
|
Figure 2.3 NSR31
School of Continuing
and Professional Studies - CUHK |
|
2.3.
IMPACT MONITORING METHODOLOGY
2.4.1 Integrated sound level meter shall be used for the noise monitoring. The meter shall be in compliance with the International Electrotechnical Commission Publications 651: 1979 (Type 1) and 804: 1985 (Type 1) specifications. Immediately prior to and following each noise measurement the accuracy of the sound level meter shall be checked using an acoustic calibrator generating a known sound pressure level at a known frequency. Measurements may be accepted as valid only if the calibration level before and after the noise measurements agree to within 1.0 dB(A). Calibration certificates of the instruments used to be shown at Appendix F is intentionally left blank since no impact monitoring equipment was used in the reporting month.
Noise measurements shall not be made in the presence of fog, rain, wind with a steady speed exceeding 5 m/s or wind with gusts exceeding 10 m/s. The wind speed shall be checked with a portable wind speed meter capable of measuring the wind speed in m/s.
Table 2.3 Impact Noise Monitoring Equipment
|
Equipment |
Brand and Model |
Detection Limit |
|
Sound Level
Meter |
Nti XL2 |
30-130 dB(A) |
|
Sound Level Meter Calibrator |
Rion NC-74 |
Nil |
|
Pocket Wind Meter Anemometer |
Kestrel 1000 Wind
Meter |
Nil |
2.4. ACTION AND LIMIT LEVELS
The Action/Limit Levels in line with the criteria of Practice Note for Professional Persons (ProPECC PN 2/93) ¡§Noise from Construction Activities ¡V Non-statutory Controls¡¨ and Technical Memorandum on Environmental Impact Assessment Process issued by HKSAR Environmental Protection Department [¡§EPD¡¨] under the Environmental Impact Assessment Ordinance, Cap 499,
S.16 are
presented in Table 2.4.
Table 3.4
Action and
Limit Levels for Noise
per Updated EM&A Manual
|
Time Period |
Action |
Limit (dB(A)) |
|
0700-1900
hours on normal weekdays |
When one
documented complaint is received from any one of the noise sensitive receivers |
¡P
70 dB(A) for school and ¡P
65 dB(A) during examination period |
Notes: Limits specified
in the
GW-TM and IND-TM for construction
and operation
noise, respectively.
If exceedances were found during noise monitoring, the actions in accordance with the Event and Action Plan shall be carried out according to Appendix E.
2.5 MONITORING RESULTS AND OBSERVATIONS
Referring to EM&A manual Section 4.1.2, the impact noise monitoring should be carried out when there are project-related construction activities undertaken within a radius of 300m from the monitoring stations. No monitoring station was located within a radius of 300m of the Project site as shown in Figure 2.4, no impact monitoring for noise impact was conducted in the reporting period.

Figure 2.4 Site
Layout Plan with Noise
Sensitive Receivers and Desalination Plant
3.
WATER QUALITY
In accordance with the recommendations of the EIA, water quality EM&A is required during dredging for the submarine pipelines and, during operation phase. In addition, baseline water quality monitoring will be required prior to the commencement of marine construction activities. The following Section provides details of the water quality monitoring to be undertaken by the Environmental Team (ET) to verify the distance of sediment and brine plume dispersion and to identify whether the potential exists for any indirect impacts to occur to ecological sensitive receivers. The water quality monitoring programme will be carried out to allow any deteriorating water quality to be readily detected and timely action taken to rectify the situation. The status and locations of water quality sensitive receivers and the marine works location may change after issuing this Document. If required, the ET in consultation with IEC will propose updated monitoring locations and seek approval from EPD.
Water quality monitoring for the Project can be divided into the following stages:
- Dredging activities during construction phase;
- Discharge of effluent from main disinfection during construction phase;
- Operation phase ¡V first year upon commissioning; and,
- Continuous monitoring of effluent quality.
In addition, the marine works contractor is required to complete a silt curtain efficiency test for the combined use of floating silt curtain type and cage type silt curtain for dredging at seawater intake to confirm the silt curtain reduction efficiency assumptions of the assessment. The details of testing plan together with the silt curtain deployment plan updated testing plan shall be submitted by the ET to seek approval from the IEC and EPD.
3.1.
IMPACT MONITORING METHODOLOGY
3.1.1.
WATER QUALITY PARAMETERS
The parameters that have been selected for measurement in situ and in the laboratory are those that were either determined in the EIA to be those with the most potential to be affected by the construction works or are a standard check on water quality conditions. Parameters to be measured in the baseline monitoring are listed in Table 3.1.
Table 3.1 Parameters
measured in the baseline marine water quality monitoring
|
Parameters |
Unit |
Abbreviation |
|
In-situ measurements |
||
|
Dissolved oxygen |
mg/L |
DO |
|
Temperature |
oC |
- |
|
pH |
- |
- |
|
Turbidity |
NTU |
- |
|
Salinity |
0/00 |
- |
|
Total Residual Chlorine NOTE1 |
mg/L |
TRC |
|
Laboratory measurements |
||
|
Suspended Solids |
mg/L |
SS |
|
Iron-Soluble NOTE2 |
mg/L |
Fe |
|
Anti-scalant as Reactive Phosphorus NOTE2 |
mg/L |
PO4 as P- |
NOTE 1: Monitoring of TRC will be conducted when cleaning and sterilization of the new freshwater main is carried out.
NOTE 2: The testing methods shall be submitted to EPD for approval prior to the commencement of monitoring programme
In addition to the water quality parameters, other relevant data will also be measured and recorded in Water Quality Monitoring Logs, including the location of the sampling stations, water depth, time, weather conditions, sea conditions, tidal stage, current direction and velocity, special phenomena and work activities undertaken around the monitoring and works area that may influence the monitoring results.
3.1.2.
MONITORING EQUIPMENT
For water quality monitoring, the following equipment will be used:
Dissolved Oxygen and Temperature Measuring Equipment - The instrument will be a portable, weatherproof dissolved oxygen measuring instrument complete with cable, sensor, comprehensive operation manuals, and will be operable from a DC power source. It will be capable of measuring: dissolved oxygen levels in the range of 0 - 20 mg/L and 0 - 200% saturation; and a temperature of 0 - 45 degrees Celsius. It shall have a membrane electrode with automatic temperature compensation complete with a cable of not less than 35 m in length. Sufficient stocks of spare electrodes and cables shall be available for replacement where necessary (e.g. YSI model 59 DO meter, YSI 5739 probe, YSI 5795A submersible stirrer with reel and cable or an approved similar instrument).
Turbidity Measurement Equipment - The instrument will be a portable, weatherproof turbidity- measuring unit complete with cable, sensor and comprehensive operation manuals. The equipment will be operated from a DC power source, it will have a photoelectric sensor capable of measuring turbidity between 0 - 1000 NTU and will be complete with a cable with at least 35 m in length (for example Hach 2100P or an approved similar instrument).
Salinity Measurement Instrument - A portable salinometer capable of measuring salinity in the range of 0 - 40 ppt will be provided for measuring salinity of the water at each monitoring location.
Water Depth Gauge ¡V A portable, battery-operated echo sounder (for example Seafarer 700 or a similar approved instrument) will be used for the determination of water depth at each designated monitoring station. This unit will preferably be affixed to the bottom of the work boat if the same vessel is to be used throughout the monitoring programme. The echo sounder should be suitably calibrated. The ET shall seek approval for their proposed equipment with the client prior to deployment.
Current Velocity and Direction ¡V No specific equipment is recommended for measuring the current velocity and direction. The environmental contractor shall seek approval of their proposed equipment with the client prior to deployment.
Positioning Device ¡V A Global Positioning System (GPS) shall be used during monitoring to allow accurate recording of the position of the monitoring vessel before taking measurements. The Differential GPS, or equivalent instrument, should be suitably calibrated at appropriate checkpoint (e.g. Quarry Bay Survey Nail) to verify that the monitoring station is at the correct position before the water quality monitoring commence.
Water Sampling Equipment - A water sampler, consisting of a PVC or glass cylinder of not less than two litres, which can be effectively sealed with cups at both ends, will be used (e.g. Kahlsico Water Sampler 13SWB203 or an approved similar instrument). The water sampler will have a positive latching system to keep it open and prevent premature closure until released by a messenger when the sampler is at the selected water depth.
Total Residual Chlorine for Discharge of Sterilization Water - Total residual
chlorine (TRC) shall
be
measured in-situ using a handheld colorimeter with its testing toolkits.
3.1.3.
SAMPLING / TESTING PROTOCOLS
All in situ monitoring instruments will be checked, calibrated and certified by a laboratory accredited under HOKLAS or any other international accreditation scheme before use, and subsequently re-calibrated at monthly intervals throughout the stages of the water quality monitoring. Responses of sensors and electrodes will be checked with certified standard solutions before each use.
On-site calibration of field equipment shall follow the ¡§Guide to On-Site Test Methods for the
Analysis of Waters¡¨, BS 1427: 2009. Sufficient stocks of spare parts shall be maintained for replacements when necessary. Backup monitoring equipment shall also be made available so that monitoring can proceed uninterrupted even when equipment is under maintenance, calibration etc.
3.1.4.
LABORATORY MEASUREMENT AND ANALYSIS
All laboratory work shall be carried out in a HOKLAS accredited laboratory. Sufficient volume of each water sample shall be collected at the monitoring stations for carrying out the laboratory analyses. Using chain of custody forms, collected water samples will be transferred to an HOKLAS accredited laboratory for immediate processing. The determination work shall start within the next working day after collection of the water samples. The laboratory measurements shall be provided to the client within 5 working days of the sampling event. Analytical methodology and sample preservation of other parameters will be based on the latest edition of Standard Methods for the Examination of Waste and Wastewater published by APHA, AWWA and WPCF and methods by USEPA, or suitable method in accordance with requirements of HOKLAS or another internationally accredited scheme. The submitted information should include pre-treatment procedures, instrument use, Quality Assurance/Quality Control (QA/QC) details (such as blank, spike recovery, number of duplicate samples per-batch etc), detection limits and accuracy. The QA/QC details shall be in accordance with requirements of HOKLAS or another internationally accredited scheme.
Parameters for laboratory measurements, their standard methods and their detection limits are presented in Table 3.2.
Table 3.2 Laboratory measurements, standard methods and corresponding detection limits of marine water quality monitoring
|
Parameters |
Standard Methods |
Detection Limit |
Reporting Limit |
Precision |
|
Dissolved oxygen (mg/L) |
Instrumental, CTD |
0.1 |
- |
¡Ó25% |
|
Temperature (oC) |
Instrumental, CTD |
0.1 |
- |
¡Ó25% |
|
pH |
Instrumental, CTD |
0.1 |
- |
¡Ó25% |
|
Turbidity (NTU) |
Instrumental, CTD |
0.1 |
- |
¡Ó25% |
|
Salinity (0/00) |
Instrumental, CTD |
0.1 |
- |
¡Ó25% |
|
Suspended Solids (mg/L) |
APHA 17th Ed 2540D |
1.0 |
2.0 |
¡Ó17% |
|
Total Residual Chlorine (mg/L) |
APHA 21st Ed 4500 ¡V Cl G NOTE1 |
0.1NOTE1 |
0.2NOTE1 |
¡Ó10% NOTE1 |
|
Iron-soluble |
USEPA 6010C NOTE 1 |
0.2NOTE1 |
0.2NOTE1 |
¡Ó25%NOTE1 |
|
Parameters |
Standard Methods |
Detection Limit |
Reporting Limit |
Precision |
|
Anti-scalant as Reactive phosphorus |
APHA 4500P: B&F NOTE1 |
0.01NOTE1 |
0.01NOTE1 |
¡Ó25%NOTE1 |
NOTE1: The testing methods, Quality Assurance/Quality Control (QA/QC) details, detection limits and accuracy shall be submitted to EPD for approval prior to the commencement of monitoring programme.
If exceedances were found during water monitoring, the actions in accordance with the Event and Action Plan shall be carried out according to Appendix G.
3.1.5.
MONITORING
LOCATION
The water quality monitoring locations for baseline in accordance to the EM&A Manual and Contract Specification are shown in Figure 3.1 and Figure 4.1 respectively, and detailed in Table 3.3 below. A schedule for water quality monitoring shall be prepared by the ET and approved by IEC and EPD prior to the commencement of the monitoring.
Table 3.3 Location of Baseline Water Quality Monitoring Station
|
Station |
Easting |
Northing |
Description |
|
CE |
843550 |
815243 |
Upstream control station at ebb tide |
|
CF |
846843 |
810193 |
Upstream control station at flood tide |
|
WSR1 |
846864 |
812014 |
Ecological sensitive receiver at Tung Lung Chau |
|
WSR2 |
847645 |
812993 |
Fisheries sensitive receiver at Tung Lung Chau |
|
WSR3 |
848023 |
813262 |
Ecological sensitive receiver at Tung Lung Chau |
|
WSR4 |
847886 |
814154 |
Ecological sensitive receiver at Tai Miu Wan |
|
WSR16 |
845039 |
815287 |
Ecological sensitive receiver at Fat Tong Chau |
|
WSR33 |
847159 |
814488 |
Ecological sensitive receiver at Tai Miu Wan |
|
WSR36 |
846878 |
814081 |
Ecological sensitive receiver at Kwun Tsai |
|
WSR37 |
846655 |
813810 |
Ecological sensitive receiver at Tit Cham Chau |
|
NF1 |
846542 |
813614 |
Edge of mixing zone, ~ 200m west of outfall diffuser |
|
NF2 |
846942 |
813614 |
Edge of mixing zone, ~ 200m east of outfall diffuser |
|
NF3 |
846742 |
813414 |
Edge of mixing zone, ~ 200m south of outfall diffuser |
WSR1 to WSR37 were identified in accordance with Annex 14 of the EIAO-TM as well as Clause
3.4.4.2 of the Environmental Impact Assessment Study Brief for Desalination Plant at Tseung Kwan O (No. ESB-266/2013). WSR1 to WSR3 are sited near the Tung Lung Chau Fish Culture Zone; WSR16 and WSR36 are sited near the coral assemblages along the coastlines of Fat Tong Chau and Kwun Tsai respectively; WSR 4 and WSR33 are sited near the Coastal Protection Area and coral assemblages in waters of Tai Miu Wan; WSR37 is sited near the fisheries resource including spawning and nursery grounds at the coastal water of Tit Cham Chau.
Figure 3.1 Baseline water quality monitoring
locations under EM&A Manual

3.1.6. SAMPLING
FREQUENCY
During periods when there are dredging works, impact monitoring should be undertaken at the monitoring stations as shown in Figure 3.1 and Table 3.3 three days per week during the construction phase after the commencement of marine construction works and dredging activities. Monitoring at each station would be undertaken at both mid-ebb
and mid-flood tides on the same day. The tidal range selected
for the baseline
monitoring will be at least 0.5 m for both flood and ebb tides as far as practicable. The interval
between two sets of monitoring would not be less than 36 hours. The monitoring frequency
would be increased in the case of exceedances of Action/Limit Levels if considered necessary by ET. Monitoring
frequency would be maintained as far as practicable.
The monitoring location/position, time, water depth, water temperature, salinity, weather conditions, sea conditions, tidal stage, special phenomena and work underway at the marine works site will be recorded.
3.1.7. SAMPLING DEPTHS & REPLICATION
For baseline monitoring, each station will be sampled and measurements/ water samples will be taken at three depths, 1 m below the sea surface, mid-depth and 1 m above the seabed. For stations that are less than 3 m in depth, only the mid depth sample shall be taken. For stations that are less than 6 m in depth, only the surface and seabed sample shall be taken. For in situ measurements, duplicate readings shall be made at each water depth at each station. Duplicate water samples shall be collected at each water depth at each station.
3.2. MONITORING PROGRAMME
The ET of the Project had conducted the baseline water monitoring between 12 May 2020 to 6 Jun 2020 at the thirteen designated monitoring stations and the six designated monitoring at waters near TKO in accordance with the EM&A Manual and Contract Specification respectively. The monitoring results was presented in Baseline Water Quality Monitoring Report separately.
The commencement of marine construction and dredging activities for the Project are scheduled in November 2020 the earliest. The impact water monitoring shall be scheduled after the commencement of marine construction and dredging activities. Hence, no water monitoring was conducted during the reporting month.
4. WASTE
The waste generated from this Project includes inert construction and demolition (C&D)
materials, and non-inert
C&D materials. Non- inert C&D
materials are made up of general
refuse, vegetative wastes and recyclable wastes such as plastics and paper/cardboard packaging waste. Steel materials generated from the project are also grouped into non-inert C&D materials
as the materials were not disposed of with other inert C&D
materials. With reference to relevant handling records and trip tickets of this Project, the quantities of different
types of waste generated in the
reporting month are summarised
in Table
4.1. Details of cumulative
waste management data are presented
as a waste flow table
in Appendix H.
Table 4.1
Quantities
of Waste Generated from the
Project during June 2020
|
Reporting Month |
Actual Quantities of Inert
C&D Materials Generated Monthly |
Actual Quantities of C&D Wastes
Generated Monthly |
|||||||||
|
Total Quantity Generated |
Hard Rock and Large Broken Concrete |
Reused in the Contract |
Reused in other Projects |
Disposed as Public Fill |
Imported Fill |
Metals |
Paper / cardboard packaging |
Plastics (see Note) |
Chemical Waste |
Others, e.g. general refuse |
|
|
(in ,000kg) |
(in ,000kg) |
(in ,000kg) |
(in ,000kg) |
(in ,000kg) |
(in ,000kg) |
(in ,000kg) |
(in ,000kg) |
(in ,000kg) |
(in ,000kg) |
(in ,000kg) |
|
|
Jun 2020 |
1081.95 |
0 |
0 |
0 |
1081.95 |
0 |
0 |
0 |
0 |
0 |
34.16 |
Notes: (1)
Plastics refer to plastic
bottles / containers, plastic sheets / foam from packaging
material
5.
LANDFILL GAS MONITORING
5.1.
MONITORING REQUIREMENT
In accordance with Section 11 of the EM&A Manual, monitoring of landfill gas is required for construction works within the 250m Consultation Zone. Part of the desalination plant and the indicative area of natural slope mitigation works fall within the SENT Landfill Extension Consultation Zone; and part of the 1,200 mm diameter fresh water mains along Wan Po Road falls within the SENT Landfill and SENT Landfill Extension Consultation Zones, TKO Stage II/III Restored Landfill and TKO Stage I Restored Landfill Consultation Zones.
5.2.
MONITORING LOCATION
Monitoring of oxygen, methane, carbon dioxide and barometric pressure was performed for excavations at 1m depth or more within the consultation Zone.
During construction of works within the consultation zones, excavations of 1m depth or more was monitored:
-
At the ground surface
before excavation commences;
-
Immediately
before any worker enters the
excavation;
-
At the beginning of each working day for the entire
period the excavation remains open; and
-
Periodically through the working day whilst workers
are in the excavation.
For excavations between 300mm and 1m deep, measurements should be carried out:
-
Directly
after the excavation has been completed; and
-
Periodically
whilst the excavation remains open.
5.3.
MONITORING PROGRAMME
For the part of the desalination plant and the indicative area of natural slope mitigation works fall within the SENT Landfill Extension Consultation Zone in this contract. Since the SENT Landfill Extension is still under construction, the Landfill gas monitoring shall be conducted after the commencement of operation of the SENT Landfill Extension which will be 2021 Quarter 3 according to the latest construction programme shown in the monthly EM&A Report of SENT Landfill Extension. The Contractor¡¦s safety officer shall keep review the necessity of landfill gas monitoring during the construction stage. No landfill gas monitoring was conducted in the reporting period.
6.
SUMMARY OF MONITORING EXCEEDANCE, COMPLAINTS,
NOTIFICATION OF SUMMONS AND PROSECUTIONS
The Environmental Complaint Handling Procedure is shown in below Figure 5.1:

Figure 6.1 Environmental Complaint Handling
Procedures
No noise monitoring was conducted during the reporting period since there are no project-related construction activities undertaken within a radius of 300m from the monitoring locations.
The baseline water monitoring had been conducted between 12 May 2020 to 6 Jun 2020 at the thirteen designated monitoring stations and the six designated monitoring at waters near TKO. No impact water quality monitoring was conducted in the reporting month since the commencement of marine construction and dredging activities for the Project are scheduled in November 2020 the earliest.
No project-related exceedance of the Action Level was recorded during the reporting period. No notification of summons and prosecution was received in the reporting period.
Statistics on complaints and regulatory compliance are summarized in Appendix J.
7.
EM&A SITE
INSPECTION
Site inspections were carried out on a weekly basis to monitor the implementation of proper environmental pollution control and mitigation measures under the Contract. In the reporting period, site inspections were carried out on 2, 8, 17, 23 & 30 June 2020 at the site portions list in Table 6.1 below.
Table 7.1 Summaries
of Site
Inspection Record
|
Date |
Inspected Site Portion |
Time |
|
2 June 2020 |
TKO 137 |
09:30 ¡V 10:45
AM |
|
8 June 2020 |
TKO 137 |
14:00 ¡V 16:00
PM |
|
17 June 2020 |
TKO 137 |
14:30 ¡V 16:15
PM |
|
23 June 2020 |
TKO 137 |
14:30 ¡V 16:45
PM |
|
30 June 2020 |
TKO 137 |
10:00 ¡V 11:20
AM |
Two joint site inspection with IEC was carried out on 17 & 30 June 2020.
Environmental deficiencies were observed during weekly site inspection. Key observations during the site inspections and during the reporting period are summarized in Table 7 .2.
Table 7.2 Site
Observations
|
Date |
Environmental Observations |
Follow-up
Status |
|
2 June 2020
(Site inspection) |
Observation(s) and Recommendation(s) 1. Stagnant water was observed inside the drip tray. The stagnant water should
be cleaned after raining. |
1.
The stagnant water had cleaned. |
|
8 June 2020 (Site
inspection) |
Observation(s) and Recommendation(s) 1.
No major observation was observed. |
Nil. |
|
17 June 2020 (Site
inspection) |
Observation(s) and Recommendation(s) 1.
No major observation was observed. |
Nil. |
|
23 June 2020 (Site
inspection) |
Observation(s) and Recommendation(s) 1. Chemicals were
not found inside the drip tray
at combined shaft area. |
1.
Chemicals had
moved inside drip tray. |
|
30 June 2020
(Site inspection) |
Observation(s) and Recommendation(s) 1. No major observation was observed. |
Nil. |
According to the EIA Study Report, Environmental Permit, contract documents and EM&A Manual, the mitigation measures detailed in the documents are implemented as much as practical during the reporting period. An updated Implementation Status of Environmental Mitigation Measures (EMIS) is provided in Appendix C.
Site inspection proforma of the reporting period
is
provided in Appendix
I.
Works to be undertaken in the next reporting month are:
-
Land Survey;
-
Ground
Levelling;
-
Access
Road Construction;
-
Site office¡¦s roof waterproofing and internal
E&M installation;
-
Construction of 132kV
substation;
-
Construction of Temp 11kV
substation and drawpits
/ ducting;
-
Pre-boring
for
combine shaft and installation of sheeppiles;
-
Excavation
and formation
for ActiDAFF and RO;
-
Erection of hoarding around
site office;
-
Installation
of temporary
watermain;
-
Excavation
and installation of temporary
soil nail for Product
Water Tank;
-
Installation
of tower
cranes.
The major environmental impacts brought by the above construction works will include:
-
Construction dust and noise generation from GI works, access road construction and site office
formation work;
-
Waste
generation from construction activities
The key environmental mitigation measures for the Project in the coming reporting period associated with the above construction works will include:
-
Dust suppression
by regular
wetting and water spraying for construction
works
-
Reduction
of noise from equipment and machinery
on-site
-
Sorting
and storage of general
refuse and construction waste
Referring to EM&A Manual Section 4.1.2, the impact noise monitoring should be carried out at all the designated monitoring stations when there are project-related construction activities undertaken within a radius of 300m from the monitoring stations.
The impact monitoring schedule for the next reporting month to be shown at Appendix K is intentionally left blank since no impact monitoring will be conducted in the next reporting month.
9.
CONCLUSIONS
AND RECOMMENDATIONS
This is the 4th Monthly EM&A Report for the Project which summarizes the key findings of the EM&A programme during the reporting period from 1 June to 30 June 2020, in accordance with the EM&A Manual and the requirement under FEP-01/503/2015/A.
No noise monitoring was conducted in the reporting period due to the over distant monitoring station from the works location.
construction activities undertaken within a radius of 300m from the monitoring locations.
The baseline water monitoring had been conducted between 12 May 2020 to 6 Jun 2020 at the thirteen designated monitoring stations and the six designated monitoring at waters near TKO. No impact water monitoring was conducted in the reporting period due to no marine construction works and dredging activities were conducted in the reporting period.
No project-related exceedance of the Action / Limit Level was recorded during the reporting period.
Weekly environmental site inspection was conducted during the reporting period. Minor deficiency was observed during site inspection and was rectified. The environmental performance of the project was therefore considered satisfactory.
According to the environmental site inspections performed in the reporting month, the Contractor is reminded to pay attention on maintaining proper materials storage.
No environmental complaint was received in the reporting period.
No notification of summons or prosecution was received since commencement of the Contract.
The ET will keep track on the construction works to confirm compliance of environmental requirements and the proper implementation of all necessary mitigation measures.
Master Programme




Appendix B
Overview
of Desalination Plant in Tseung Kwan O


Summary of Implementation Status of Environmental Mitigation
|
EIA Reference |
Recommended Environmental Protection Measures/ Mitigation Measures |
Objectives of the recommended measures & main concerns to address |
Implementation Agent |
Implementation Stage |
Implementation status |
Relevant Legislation & Guidelines |
||
|
D |
C |
O |
||||||
|
Air Quality |
|
|||||||
|
S4.8.1 |
Impervious dust screen or sheeting will be provided to enclose scaffolding from the ground floor level of building for construction of superstructure of the
new buildings. |
Land site/ During Construction |
Contractor(s) |
|
✓ |
|
N/A |
Air Pollution Control (Construction Dust) |
|
S4.8.1 |
Impervious sheet will be provided for skip hoist for material transport. |
Land site/ During Construction, particularly dry season |
Contractor(s) |
|
✓ |
|
NA |
|
|
S4.8.1 |
The area where dusty
work takes place
should be sprayed with water or a
dust suppression chemical immediately prior to, during and immediately after
dusty activities as far as practicable. |
Land site/ During Construction |
Contractor(s) |
|
✓ |
|
Implemented |
|
|
S4.8.1 |
All dusty materials should be sprayed with
water or a dust
suppression chemical immediately prior to any loading, unloading or transfer operation. |
Land site/ During Construction |
Contractor(s) |
|
✓ |
|
Implemented |
|
|
S4.8.1 |
Dropping heights for excavated materials should be controlled to a practical
height to minimise the fugitive dust arising from unloading. |
Land site/ During Construction |
Contractor(s) |
|
✓ |
|
N/A |
|
|
S4.8.1 |
During transportation by truck, materials should not be loaded
to a level higher than the side and tail boards, and should be dampened or covered before transport. |
Land site/ During Construction |
Contractor(s) |
|
✓ |
|
N/A |
|
|
S4.8.1 |
Wheel washing device
should be provided at the exits of the
work sites.
Immediately before leaving a construction site, every vehicle shall be washed to remove any dusty material from its body and wheels as far as practicable. |
Land site/ During Construction |
Contractor(s) |
|
✓ |
|
N/A |
|
|
EIA Reference |
Recommended Environmental Protection Measures/ Mitigation Measures |
Objectives of the recommended measures & main concerns to address |
Implementation Agent |
Implementation Stage |
Implementation status |
Relevant Legislation & Guidelines |
||
|
D |
C |
O |
||||||
|
S4.8.1 |
Road sections between vehicle-wash areas and vehicular entrance will be paved. |
Land site/ During Construction |
Contractor(s) |
|
✓ |
|
Implemented |
|
|
S4.8.1 |
Hoarding of not less than 2.4m
high from ground level will be provided
along the length of the Project Site boundary. |
Land site/ During construction |
Contractor(s) |
✓ |
✓ |
|
N/A |
|
|
S4.8.1 |
Haul roads will be kept
clear of dusty materials and will be sprayed with
water so as
to maintain the entire road surface wet at all times. |
Land site/ During construction |
Contractor(s) |
|
✓ |
|
Implemented |
|
|
S4.8.1 |
Temporary stockpiles of dusty materials will be either covered entirely by impervious sheets or sprayed with water to
maintain the entire surface wet all the time. |
Land site/ During construction |
Contractor(s) |
|
✓ |
|
Implemented |
|
|
S4.8.1 |
Stockpiles of more than 20 bags of cement, dry pulverised fuel ash and dusty construction materials will be covered entirely by impervious sheeting sheltered on top and 3-sides. |
Land site/ During construction |
Contractor(s) |
|
✓ |
|
N/A |
|
|
S4.8.1 |
All exposed areas will be kept wet always
to minimise dust emission. |
Land site/ During construction |
Contractor(s) |
|
✓ |
|
Implemented |
|
|
S4.8.1 |
Ultra-low-sulphur diesel (ULSD) will be used for all construction
plant on-site, as defined as diesel fuel containing not more than 0.005% sulphur by weight) as stipulated in Environment, Transport and Works Bureau Technical Circular (ETWB-TC(W)) No 19/2005
on Environmental Management on Construction Sites. |
Land site/ During construction/ During Operation |
Contractor(s) |
|
✓ |
✓ |
Implemented |
Environment, Transport and Works Bureau Technical Circular (ETWB- TC(W)) No 19/2005 on Environmental Management on Construction Sites |
|
EIA Reference |
Recommended Environmental Protection Measures/ Mitigation Measures |
Objectives of the recommended measures & main concerns to address |
Implementation Agent |
Implementation Stage |
Implementation status |
Relevant Legislation & Guidelines |
||
|
D |
C |
O |
||||||
|
S4.8.1 |
The engine
of the construction equipment during idling will be switched off. |
Land site/ During construction |
Contractor(s) |
|
✓ |
|
Implemented |
|
|
S4.8.1 |
Concrete batching plant will be required
on site. control measures recommended in the Guidance Note on a Best Practicable
Means for Cement Works (Concrete Batching Plant) (BPM 3/2 (93)) will be implemented. The control measures recommended in the Guidance Note on a Best Practicable Means for Cement Works (Concrete Batching Plant) (BPM 3/2 (93)) will be |
Land site/ During construction |
Contractor(s) |
|
✓ |
|
N/A |
Guidance Note on a
Best |
|
S4.8.1 |
Regular maintenance of construction equipment deployed on-site will be conducted to prevent black smoke
emission. |
Land site/ During construction |
Contractor(s) |
|
✓ |
|
Implemented |
|
|
S4.10 |
To ensure proper implementation of the recommended dust mitigation measures and good construction site practices during the construction phase, environmental site audits on weekly basis is recommended
throughout the construction period. |
Land site/ During construction |
Contractor(s)/ Environmental Team (ET) & Independent Environmental Checker (IEC) |
|
✓ |
|
Implemented |
|
Note:
D ¡V Design stage C ¡V Construction O ¡V Operation
|
EIA Reference |
Recommended Environmental Protection Measures/ Mitigation Measures |
Objectives of the recommended measures & main concerns to address |
Implementation Agent |
Implementation Stage |
Implementation status |
Relevant Legislation & Guidelines |
||
|
D |
C |
O |
||||||
|
Noise |
||||||||
|
S5.7 |
Only well-maintained plant will be operated on- site and plant
will be serviced regularly during the construction phase. |
All area/ During construction |
Contractor(s) |
|
✓ |
|
Implemented |
A Practical
Guide for the Reduction of Noise from Construction Works, |
|
S5.7 |
Silencers or mufflers on construction
equipment will be utilised
and will be properly maintained during the construction phase. |
Noise control/ During construction |
Contractor(s) |
|
✓ |
|
N/A |
A Practical
Guide for the Reduction of Noise from Construction Works, |
|
S5.7 |
Mobile plant, if any, will be sited as far away from NSRs as possible. |
Noise control/ During construction |
Contractor(s) |
|
✓ |
|
Implemented |
A Practical
Guide for the Reduction of Noise from Construction Works, |
|
S5.7 |
Machines and plant (such as
trucks) that may be in intermittent use will
be shut down between work periods or will be throttled down to a minimum. |
Noise control/ During construction |
Contractor(s) |
|
✓ |
|
Implemented |
A Practical
Guide for the Reduction of Noise from Construction Works, |
|
S5.7 |
Plants known to emit noise strongly in one direction will, wherever possible, be
orientated so that the noise is directed away from the nearby NSRs. |
Noise control/ During construction |
Contractor(s) |
|
✓ |
|
N/A |
A Practical
Guide for the Reduction of Noise from Construction Works, |
|
S5.7 |
Material stockpiles and other structures will be effectively utilised, wherever practicable, in screening noise from on-site construction activities. |
Noise control/ During construction |
Contractor(s) |
|
✓ |
|
N/A |
A Practical
Guide for the Reduction of Noise from Construction Works, |
|
S5.7 |
Use of Quite
Powered Mechanical Equipment (QPME). |
Noise control/ During construction |
Contractor(s) |
|
✓ |
|
Implemented |
A Practical
Guide for the Reduction of Noise from Construction Works, |
|
S5.7 |
Movable noise barriers of 3m in
height with skid footing should be
used and located within a
few metres of stationary
plant and mobile plant such that the line of sight to the
NSR is blocked
by the barriers. The length of the barrier
should be at least five times greater than its height. The noise barrier material should have a superficial |
Noise control/ During construction |
Contractor(s) |
|
✓ |
|
N/A |
A Practical Guide for the Reduction of Noise from Construction Works, |
|
EIA Reference |
Recommended Environmental Protection Measures/ Mitigation Measures |
Objectives of the recommended measures & main concerns to address |
Implementation Agent |
Implementation Stage |
Implementation status |
Relevant Legislation & Guidelines |
||
|
D |
C |
O |
||||||
|
|
surface density of at least 7 kg m-2 and have no openings or gaps. |
|
|
|
|
|
|
|
|
S5.7 |
The noise insulating sheet should be deployed such that there would be no opening or gaps on the joints. |
Noise control/ During construction |
Contractor(s) |
|
✓ |
|
N/A |
A Practical Guide for the Reduction of Noise from Construction Works, |
|
S5.7 |
Construction activities (e.g. excavation/shoring, reinstatement (asphalt), and pipe jacking) will be planned and carried out in sequence, such that items of PME proposed for these activities will not be operated simultaneously. |
Noise control/ During construction |
Contractor(s) |
|
✓ |
|
Implemented |
A Practical Guide for the Reduction of Noise from Construction Works |
|
S5.7 |
PMEs will not be used at the works
areas near educational institutions with residual impact (ie the ¡§influence area¡¨ within a radius of 40m) during school hours in order to reduce impact to the educational institutions. |
Noise control / During construction |
Contractor(s) |
|
✓ |
|
Implemented |
A Practical Guide for the Reduction of Noise from Construction Works |
|
S5.7 |
Noise enclosures or acoustic sheds would be used to cover stationary PME such as generators. Portable/Movable noise enclosure made of material with superficial surface density of at least 7 kg m-2 may be used for screening the noise from operation of the saw/groover, concrete. |
Noise control/ Pre- construction/ During construction |
Contractor(s) |
✓ |
✓ |
|
N/A |
|
|
S5.9 |
Sawcutting pavement, breaking
up of pavement, excavation /shoring, pipe laying, backfilling, reinstatement (concrete) and pipe jacking shall be scheduled outside the examination period. |
Noise control/ Pre- construction/ During construction |
Contractor(s) |
✓ |
✓ |
|
N/A |
|
|
EIA Reference |
Recommended Environmental Protection Measures/ Mitigation Measures |
Objectives of the recommended measures & main concerns to address |
Implementation Agent |
Implementation Stage |
Implementation status |
Relevant Legislation & Guidelines |
||
|
D |
C |
O |
||||||
|
S5.9 |
In view
the duration of noise
exceedance at Creative
Secondary School,
PLK Laws Foundation College, TKO Kei Tak Primary School and School of Continuing
and Professional Studies-CUHK is limited to 8 weeks, the construction work in the influence areas near the four schools shall be scheduled during long school holidays (eg summer holiday, Easter holiday or Christmas holiday, etc) as far
as practicable. Scheduling the construction work for the four schools. |
Noise control/ Pre- construction/ During construction |
Contractor(s) |
✓ |
✓ |
|
N/A |
|
|
S5.10 |
A noise monitoring programme shall be implemented for the
construction phase. |
Designated monitoring stations as defined in EM&A Manual/During construction phase |
Environmental Team (ET) |
|
✓ |
|
Implemented |
|
|
S5.10 |
The effectiveness of on-site control measures could also be evaluated through the regular site audits. |
All facilities/ During construction |
Contractor(s)/ Environmental Team (ET) & Independent Environmental Checker (IEC) |
|
✓ |
|
Implemented |
- |
Note:
D ¡V Design stage C ¡V Construction O ¡V Operation
|
EIA Reference |
Recommended Environmental Protection Measures/ Mitigation Measures |
Objectives of the recommende measures & main
concerns to address |
Implementatio n
Agent |
Implementation Stage |
Implementation status |
Relevant Legislation & Guidelines |
||
|
D |
C |
O |
||||||
|
Water Quality |
||||||||
|
S6.9 |
Dredged marine sediment will be disposed of in a gazetted marine disposal area in accordance with marine dumping permit conditions of the Dumping
at Sea Ordinance (DASO). |
Marine Dredging/ During construction |
Contractor(s) |
|
✓ |
|
N/A |
Dumping at Sea Ordinance (DASO) |
|
S6.9 |
Disposal vessels will be fitted with tight bottom seals in order to prevent leakage of material during transport. |
Marine Dredging/ During construction |
Contractor(s) |
|
✓ |
|
N/A |
- |
|
S6.9 |
Barges will be filled to a level, which
ensures that material does not spill over during transport to the disposal site and that adequate freeboard is maintained to ensure that the decks are not washed by wave action. |
Marine Dredging/ During construction |
Contractor(s) |
|
✓ |
|
N/A |
- |
|
S6.9 |
After dredging, any excess materials will be cleaned from decks and exposed fittings before the vessel is moved from the dredging area. |
Marine Dredging/ During construction |
Contractor(s) |
|
✓ |
|
N/A |
- |
|
S6.9 |
All vessels should be well maintained and inspected before use to limit any potential discharges to the marine environment. |
Marine Dredging/ During construction |
Contractor(s) |
|
✓ |
|
N/A |
- |
|
S6.9 |
All vessels
must have a clean ballast system. |
Marine Dredging/ During construction |
Contractor(s) |
|
✓ |
|
N/A |
- |
|
S6.9 |
No discharge
of sewage/grey wastewater should be allowed. Waste water from potentially contaminated area on working vessels should be minimized and collected. These kinds of wastewater should be brought back to port and discharged at appropriate collection and treatment system. |
Marine Dredging/ During construction |
Contractor(s) |
|
✓ |
|
N/A |
- |
|
S6.9 |
No soil waste is allowed
to be disposed overboard. |
Marine Dredging/ During construction |
Contractor(s) |
|
✓ |
|
N/A |
- |
|
EIA Reference |
Recommended Environmental Protection Measures/ Mitigation Measures |
Objectives of the recommende measures & main
concerns to address |
Implementatio n
Agent |
Implementation Stage |
Implementation status |
Relevant Legislation & Guidelines |
||
|
D |
C |
O |
||||||
|
S6.9 |
Silt removal facilities
such as silt
traps or sedimentation facilities will be provided to remove silt particles from runoff to meet the requirements of the TM standard under the WPCO. The design of silt
removal facilities will be based on the guidelines provided in ProPECC PN 1/94. All drainage
facilities and erosion and sediment control structures will be inspected on a regular
basis and maintained to confirm proper and efficient operation at all times and particularly during rainstorms. Deposited silt and grit will be removed regularly. |
Land site & drainage/ During construction |
Contractor(s) |
|
✓ |
|
Implemented |
ProPECC PN 1/94 TM Standard under the WPCO |
|
S6.9 |
Earthworks to form the final
surfaces will be followed up with surface protection and drainage works to prevent erosion caused by rainstorms. |
Land site & drainage/ During construction |
Contractor(s) |
|
✓ |
|
Implemented |
- |
|
S6.9 |
Appropriate surface drainage will be designed and provided where necessary. |
Land site & drainage/ During construction |
Contractor(s) |
|
✓ |
|
N/A |
- |
|
S6.9 |
The precautions to be taken at any time of year when rainstorms are likely together with the actions to be taken when a rainstorm is imminent or forecasted and actions to be taken during or after rainstorms are summarised in Appendix A2 of ProPECC PN 1/94. |
Land site & drainage/ During construction |
Contractor(s) |
|
✓ |
|
Implemented |
ProPECC PN 1/94 |
|
S6.9 |
Oil interceptors will be provided in the drainage system where necessary and regularly emptied to prevent the release of oil and grease into the storm water drainage system after accidental spillages. |
Land site & drainage/ During construction |
Contractor(s) |
|
✓ |
|
Implemented |
- |
|
S6.9 |
Temporary and permanent drainage
pipes and culverts provided to facilitate runoff
discharge, if any, will be adequately designed for the controlled release of storm
flows. |
Land site & drainage/ During construction |
Contractor(s) |
|
✓ |
|
N/A |
- |
|
EIA Reference |
Recommended Environmental Protection Measures/ Mitigation Measures |
Objectives of the recommende measures & main
concerns to address |
Implementatio n
Agent |
Implementation Stage |
Implementation status |
Relevant Legislation & Guidelines |
||
|
D |
C |
O |
||||||
|
S6.9 |
The temporary diverted drainage, if any, will be reinstated to the original condition when the construction work has finished or
when the temporary diversion is no longer required. |
Land site & drainage/ During construction |
Contractor(s) |
|
✓ |
|
N/A |
- |
|
S6.9 |
Appropriate numbers of portable toilets shall be provided by a licensed contractor to serve the construction workers over the construction site to prevent direct disposal of sewage into the water environment. |
Land site & drainage/ During construction |
Contractor(s) |
|
✓ |
|
Implemented |
- |
|
S6.9 and S6.12 |
The sterilization water should be dechlorinated with total residual chlorine (TRC) level below 1 mg/L before discharge to public sewer. In situ testing of TRC should also be conducted for the discharge of chlorinated water for pipeline disinfection to ensure sufficient dechlorination before discharge to public sewer. |
Sterilization of water mains prior to commissioning |
Contractor(s) |
|
✓ |
✓ |
N/A |
Technical Memorandum for Effluents Discharged into Drainage and Sewerage Systems Inland and Coastal Waters |
|
S6.9 |
The cleaning and flushing water should
also be treated and desilted to the relevant
discharge requirement stipulated in TM-DSS before discharging. |
Sterilization of water mains prior to commissioning |
Contractor(s) |
|
✓ |
✓ |
N/A |
Technical Memorandum for Effluents Discharged into Drainage and
Sewerage Systems Inland and Coastal Waters |
|
S6.9 |
Site drainage should be well maintained
and good construction practices
should be observed to ensure that oil, fuels,
solvents and other chemicals are managed, stored and handled properly and do not enter the nearby water streams. |
Land site & drainage/ During construction/ During operation |
Contractor(s) |
|
✓ |
✓ |
Implemented |
- |
|
EIA Reference |
Recommended Environmental Protection Measures/ Mitigation Measures |
Objectives of the recommende measures & main
concerns to address |
Implementatio n
Agent |
Implementation Stage |
Implementation status |
Relevant Legislation & Guidelines |
||
|
D |
C |
O |
||||||
|
S6.12 |
Regular site inspections will be carried out in order to confirm that regulatory requirements are being met and that contractors are implementing the standard site practice and mitigation measures as proposed to reduce potential impacts to water quality. |
During construction |
Contractor(s)/ Environmental Team (ET) & Independent Environmental Checker (IEC) |
|
✓ |
|
Implemented |
- |
Note:
D ¡V Design stage C ¡V Construction O ¡V Operation
|
EIA Reference |
Recommended Environmental Protection Measures/ Mitigation Measures |
Objectives of the recommended measures & main concerns to address |
Implementation Agent |
Implementation Stage |
Implementation Status |
Relevant Legislation & Guidelines |
||
|
D |
C |
O |
||||||
|
Waste Management |
||||||||
|
S8.5 |
Nomination of approved personnel to be responsible for standard site
practices, arrangements for collection and effective disposal to an appropriate facility of all
wastes generated at the site. |
Contract mobilisation/ During construction |
Contractor(s) |
|
✓ |
|
Implemented |
- |
|
S8.5 |
Training of site personnel
in proper waste management and chemical handling procedures. Training will be provided to workers on the concepts of site cleanliness and appropriate waste management procedures, including
waste reduction, reuse and recycling at the beginning of the construction works. |
Contract mobilisation/ During construction |
Contractor(s) |
|
✓ |
|
Implemented |
- |
|
S8.5 |
Provision of sufficient waste disposal points and regular collection for disposal. |
All area/ During construction/ During operation |
Contractor(s) |
|
✓ |
✓ |
Implemented |
DEVB TC(W) No. 8/2010, Enhanced Specification for Site Cleanliness and Tidiness. |
|
S8.5 |
Appropriate measures to reduce windblown litter and dust
transportation of waste by either covering trucks or by transporting wastes in enclosed containers. |
All area/ During construction |
Contractor(s) |
|
✓ |
|
Implemented |
DEVB TC(W) No. 8/2010, Enhanced Specification for Site Cleanliness and Tidiness. |
|
S8.5 |
A waste
management plan (WMP)
as stated in the ¡§ETWB TC(W) No. 19/2005, Environmental Management on Construction Sites¡¨ for the amount of waste generated, recycled and disposed of (including the disposal sites) will be established and implemented during the construction phase as part of the Environmental Management Plan (EMP). The Contractor will be required to prepare
the EMP and submits
it to the Architect/ Engineer under
the Contract for approval prior to implementation. |
All area/ During construction |
Contractor(s) |
|
✓ |
|
Implemented |
ETWB TC(W) No. 19/2005, Environmental Management on Construction Sites |
|
S8.5 |
Separation of chemical wastes for special handling and appropriate treatment at the Chemical Waste Treatment Centre at Tsing Yi. |
All area/ During construction |
Contractor(s) |
|
✓ |
|
N/A |
Chapters 2 & 3 Code of Practice on the Packaging Labelling & Storage of Chemical Wastes publishe |
|
EIA Reference |
Recommended Environmental Protection Measures/ Mitigation Measures |
Objectives of the recommended measures & main concerns to address |
Implementation Agent |
Implementation Stage |
Implementation Status |
Relevant Legislation & Guidelines |
||
|
D |
C |
O |
||||||
|
|
|
|
|
|
|
|
|
under the Waste Disposal Ordinance (Cap 354), Section 35 |
|
S8.5 |
Regular cleaning and maintenance programme for drainage systems, sumps and
oil interceptors. |
Land site/ During construction |
Contractor(s) |
|
✓ |
|
Implemented |
Waste Disposal Ordinance (Cap 354) |
|
S8.5 |
A recording system for the amount of wastes generated/ recycled and disposal sites. The trip- ticket system will be included as one
of the contractual requirements and implemented by the contractor(s). |
Land site/ During construction |
Contractor(s) |
|
✓ |
|
Implemented |
DEVB TC(W) No. 6/2010, Trip Ticket System for Disposal of Construction & Demolition Materials |
|
S8.5 |
Segregation and storage of
different types of waste in different containers, skips
or stockpiles to enhance reuse or recycling of material and their proper disposal. |
Land site/ During construction/ During operation |
Contractor(s) |
|
✓ |
|
Implemented |
WBTC 32/92,
The Use of Tropical Hard Wood on Construction Site |
|
S8.5 |
Encourage collection of aluminium cans and waste paper by individual collectors during construction with separate labelled
bins provided to segregate these wastes
from other general refuse by the workforce. |
Land site/ During construction |
Contractor(s) |
|
✓ |
|
Implemented |
ETWB TCW No. 33/2002, Management of Construction and Demolition Material Including Rock |
|
S8.5 |
Any unused chemicals
and those with remaining functional capacity will be recycled as far as possible. |
Land site/ During construction |
Contractor(s) |
|
✓ |
|
N/A |
- |
|
S8.5 |
Use of reusable non-timber formwork to reduce the amount of C&D materials. |
All areas/ During construction |
Contractor(s) |
|
✓ |
|
N/A |
WBTC 32/92, The Use of Tropical Hard Wood on Construction Site |
|
S8.5 |
Prior to disposal of construction waste, wood, steel and other metals will be separated to the extent practical, for re-use and/or recycling to reduce the quantity of waste to be disposed
of
to landfill. |
All areas/ During construction |
Contractor(s) |
|
✓ |
|
Implemented |
DEVB TC(W) No. 6/2010, Trip Ticket System for Disposal of Construction & Demolition Materials |
|
S8.5 |
Proper storage and site practices to reduce the potential for damage
or contamination of construction materials. |
All areas/ During construction |
Contractor(s) |
|
✓ |
|
Implemented, rectified after observation |
- |
|
S8.5 |
Plan and stock construction materials |
All areas/ During construction |
Contractor(s) |
|
✓ |
|
Implemented |
- |
|
EIA Reference |
Recommended Environmental Protection Measures/ Mitigation Measures |
Objectives of the recommended measures & main concerns to address |
Implementation Agent |
Implementation Stage |
Implementation Status |
Relevant Legislation & Guidelines |
||
|
D |
C |
O |
||||||
|
|
carefully to reduce amount of waste generated and avoid unnecessary generation of waste. |
|
|
|
|
|
|
|
|
S8.5 |
A Sediment Quality
Report (SQR) for
sampling and chemical testing
of
the sediment will
be prepared and submitted to the EPD
for approval. The approved detailed sampling and chemical testing will be carried out prior to the commencement of the
dredging activities to confirm the sediment disposal method. |
Marine works/ During construction |
Contractor(s) |
|
✓ |
|
N/A |
ETWB TC(W) No. 34/2002 and Dumping at Sea Ordinance (DASO) |
|
S8.5 |
The management of dredged/ excavated sediment management requirement from ETWB TC(W) No. 34/2002 will be incorporated in the Specification of the Contract Documents. |
Marine works/ During construction |
WSD/ Contractor(s) |
|
✓ |
|
Implemented |
ETWB TC(W) No. 34/2002 and Dumping at Sea Ordinance (DASO) |
|
S8.5 |
The contractor will open a
billing account with EPD in accordance with the Waste Disposal (Charges for Disposal of Construction Waste) Regulation for the payment of disposal charges. |
Contract mobilisation/ During construction |
Contractor(s) |
|
✓ |
|
Implemented |
Cap 354N Waste Disposal (Charges for Disposal of Construction Waste) Regulation |
|
S8.5 |
A trip-ticket system will be established in accordance with DEVB TC(W) No. 6/2010 to monitor the reuse of surplus excavated materials off-site and disposal of construction waste and general refuse at transfer facilities/ landfills, and to control
fly-tipping. |
Contract mobilisation/ During construction |
Contractor(s) |
|
✓ |
|
Implemented |
DEVB TC(W) No. 6/2010, Trip Ticket System for Disposal of Construction & Demolition Materials |
|
S8.5 |
The project proponent
will also conduct regular inspection of the waste management measures implemented on site as described in the Waste Management Plan. |
All area/ During construction |
Contractor(s )/ Environment al Team (ET) & Independent Environment al Checker (IEC) |
|
✓ |
|
Implemented |
ETWB TC(W) No. 19/2005, Environmental Management on Construction Sites |
|
S8.5 |
A recording system (similar to summary
table as shown in Annex 5 and Annex 6 of |
All area/ During construction |
Contractor(s) |
|
✓ |
|
Implemented |
Annex 5 and Annex 6 of Appendix G of |
|
EIA Reference |
Recommended Environmental Protection Measures/ Mitigation Measures |
Objectives of the recommended measures & main concerns to address |
Implementation Agent |
Implementation Stage |
Implementation Status |
Relevant Legislation & Guidelines |
||
|
D |
C |
O |
||||||
|
|
Appendix G of ETWB TC(W) No. 19/2005) for the amount of waste generated, recycled and disposed of (including
the disposal sites) will be established during the
construction phase. |
|
|
|
|
|
|
ETWB TC(W) No. 19/2005 |
|
S8.5 |
Inert C&D materials (public fill) will be reused within the Project as far as practicable. |
All area/ During construction |
Contractor(s) |
|
✓ |
|
N/A |
- |
|
S8.5 |
Public fill and construction waste shall
be segregated and stored
in different containers or skips to facilitate reuse or recycling of
materials and their proper disposal. |
All area/ During construction |
Contractor(s) |
|
✓ |
|
N/A |
- |
|
S8.5 |
Specific areas of the work site will
be designated for such segregation and storage if immediate use is not practicable. |
All area/ During construction |
Contractor(s) |
|
✓ |
|
N/A |
- |
|
S8.5 |
To reduce the potential dust and water quality impacts of site formation works, C&D materials will be wetted
as quickly as possible to the extent practice
after filling. |
All area/ During construction |
Contractor(s) |
|
✓ |
|
Implemented |
Air Pollution Control (Construction Dust) Regulation (Cap 311R); WPCO (Cap 358) |
|
S8.5 |
Open stockpiles of excavated/
fill materials or construction wastes on-site should
be covered with tarpaulin or similar fabric. |
Land site/ During Construction, particularly dry season |
Contractor(s) |
|
✓ |
|
Implemented |
Air Pollution Control (Construction Dust) Regulation (Cap 311R) |
|
S8.5 |
Chemical waste container shall be suitable for the substance they are holding, resistant to corrosion, maintained in a good
condition, and securely closed. |
All area/ During construction/ During operation |
Contractor(s)/ WSD |
|
✓ |
✓ |
NA |
Waste Disposal (Chemical Waste) (General) Regulation; Code of Practice on the Packaging, Handling and Storage of Chemical Wastes |
|
S8.5 |
Chemical waste container shall have a capacity of less than 450 L unless the specifications have been approved by the EPD. |
All area/ During construction/ During operation |
Contractor(s)/ WSD |
|
✓ |
✓ |
NA |
Waste Disposal (Chemical Waste) (General) Regulation; Code of Practice on the Packaging, Handling and Storage of Chemical Wastes |
|
S8.5 |
A label
in English and Chinese shall
be displayed on the chemical container
in accordance with |
All area/ During construction/ During |
Contractor(s)/ WSD |
|
✓ |
✓ |
NA |
Waste Disposal (Chemical Waste) |
|
EIA Reference |
Recommended Environmental Protection Measures/ Mitigation Measures |
Objectives of the recommended measures & main concerns to address |
Implementation Agent |
Implementation Stage |
Implementation Status |
Relevant Legislation & Guidelines |
||
|
D |
C |
O |
||||||
|
|
instructions prescribed in Schedule
2 of the Regulations. |
operation |
|
|
|
|
|
(General) Regulation; Code of Practice on the Packaging, Handling and Storage of Chemical Wastes |
|
S8.5 |
Storage areas for chemical waste shall be enclosed on at least 3 sides. |
All area/ During construction/ During operation |
Contractor(s)/ WSD |
|
✓ |
✓ |
Implemented |
Waste Disposal (Chemical Waste) (General) Regulation; Code of Practice on the Packaging, Handling and Storage of Chemical Wastes |
|
S8.5 |
Storage areas for chemical
waste shall
have an impermeable floor and bunding, of capacity to accommodate 110% of the volume of the largest container or 20%
by volume of the chemical waste stored in that area, whichever is the greatest. |
All area/ During construction/ During operation |
Contractor(s)/ WSD |
|
✓ |
✓ |
Implemented |
Waste Disposal (Chemical Waste) (General) Regulation; Code of Practice on the Packaging, Handling and Storage of Chemical Wastes |
|
S8.5 |
Storage areas for chemical waste
shall have adequate ventilation. |
All area/ During construction/ During operation |
Contractor(s)/ WSD |
|
✓ |
✓ |
Implemented |
Waste Disposal (Chemical Waste) (General) Regulation; Code of Practice on the Packaging, Handling and Storage of Chemical Wastes |
|
S8.5 |
Storage areas for chemical waste shall be covered to prevent rainfall entering (water collected within the bund must be tested and disposed of as chemical waste, if necessary). |
All area/ During construction/ During operation |
Contractor(s)/ WSD |
|
✓ |
✓ |
Implemented |
Waste Disposal (Chemical Waste) (General) Regulation; Code of Practice on the Packaging, Handling and Storage of Chemical Wastes |
|
S8.5 |
Storage areas for chemical waste shall be arranged so that incompatible materials are appropriately separated. |
All area/ During construction/ During operation |
Contractor(s)/ WSD |
|
✓ |
✓ |
Implemented |
Waste Disposal (Chemical Waste) (General) Regulation; |
|
EIA Reference |
Recommended Environmental Protection Measures/ Mitigation Measures |
Objectives of the recommended measures & main concerns to address |
Implementation Agent |
Implementation Stage |
Implementation Status |
Relevant Legislation & Guidelines |
||
|
D |
C |
O |
||||||
|
|
|
|
|
|
|
|
|
Code of Practice on the Packaging, Handling and Storage of Chemical Wastes |
|
S8.5 |
General refuse will be stored in enclosed bins or compaction units separately from construction and chemical wastes. |
All area/ During construction/ During operation |
Contractor(s)/ WSD |
|
✓ |
✓ |
Implemented |
Waste Disposal (Chemical Waste) (General) Regulation; Code of Practice on the Packaging, Handling and Storage of Chemical Wastes |
|
S8.5 |
Adequate number of waste containers will be provided to avoid over-spillage of
waste. |
All area/ During construction/ During operation |
Contractor(s)/ WSD |
|
✓ |
✓ |
Implemented |
DEVB TC(W)
No. 8/2010 Enhanced Specification for Site Cleanliness and Tidiness. |
|
S8.5 |
A reputable waste collector will be employed by the Contractor to remove general refuse from the site, separately from construction and
chemical wastes, on a daily
basis to minimise odour, pest and litter
impacts. |
All area/ During construction/ During operation |
Contractor(s)/ WSD |
|
✓ |
✓ |
N/A |
- |
|
S8.5 |
Recycling bins will be provided at strategic locations within the Site to facilitate recovery of recyclable materials (including
aluminium can, waste paper, glass bottles and plastic bottles) from the Site. Materials recovered will be sold
for recycling. |
All area/ During construction/ During operation |
Contractor(s)/ WSD |
|
✓ |
✓ |
Implemented |
- |
|
S8.5 |
To avoid any
odour and litter impact,
accurate number of portable toilets will be provided for workers on-site. |
All area/ During construction |
Contractor(s) |
|
✓ |
|
Implemented |
- |
|
S8.5 |
The burning of refuse on construction sites is prohibited by law. |
All area/ During construction |
Contractor(s) |
|
✓ |
|
Implemented |
Air Pollution Control Ordinance (Cap 311) |
|
S8.7 |
To facilitate monitoring and control
over the contractors¡¦ performance on waste management, a waste inspection and audit programme will be implemented throughout the construction phase. |
All facilities/ During construction |
ET/ IEC |
|
✓ |
|
Implemented |
- |
Note:
D ¡V Design stage C ¡V Construction O ¡V Operation
|
EIA Reference |
Recommended Environmental Protection Measures/ Mitigation Measures |
Objectives of the recommended measures & main concerns to address |
Implementation Agent |
Implementation Stage |
Implementation Status |
Relevant Legislation & Guidelines |
||
|
D |
C |
O |
||||||
|
|
Ecology |
|||||||
|
S9.7 |
For slope mitigation works
within the Clear
Water Bay Country Park, to avoid tree felling
and damages to trees, the exact locations of the flexible barrier foundation plates, soil nails and rock dowels can be adjusted during detailed design, and a setback distance
from existing trees is recommended
to be maintained as far as practical. A detailed specification describing the exact locations of the flexible barrier
foundation plates, soil nails and
rock dowels will be prepared to illustrate how the setback distance from existing trees would be implemented for tree avoidance. |
Slope mitigation works area/ During detailed design/ During construction |
Contractor(s) |
✓ |
✓ |
|
Implemented |
- |
|
S9.7 |
Pruning of tree canopies along the alignment of the flexible barriers shall be
limited to a minimum. |
Slope mitigation works area/ During construction |
Contractor(s) |
|
✓ |
|
Implemented |
|
|
S9.7 |
The alignment of flexible barriers shall be optimized to
preserve all species of conservation interest and minimize the impact to the existing vegetation as far as practicable. All
individuals of Marsdenia lachnostoma within the slope mitigation areas shall be retained in- situ, by positioning the alignment of flexible barrier at
a minimum 1.5m in a radius away from these individuals. |
Slope mitigation works area/ During detailed design/ During construction |
Contractor(s) |
✓ |
✓ |
|
N/A |
- |
|
S9.7 and 9.10 |
At the detailed design stage prior to the commencement of the slope mitigation works, a vegetation survey shall be carried
out at the
slope mitigation areas within the Clear Water Bay Country Park to assess
the condition
and identify the location of each individual
of Marsdenia lachnostoma and other flora species
of conservation interest that may be directly affected by the construction works. |
Slope mitigation works area/ During detailed design/ During construction |
Contractor(s) |
✓ |
✓ |
|
N/A |
- |
|
S9.7 |
Temporary fencing will be
installed to fence off |
Slope mitigation works |
Contractor(s) |
|
✓ |
|
N/A |
- |
|
EIA Reference |
Recommended Environmental Protection Measures/ Mitigation Measures |
Objectives of the recommended measures & main concerns to address |
Implementation Agent |
Implementation Stage |
Implementation Status |
Relevant Legislation & Guidelines |
||
|
D |
C |
O |
||||||
|
|
the concerned species either in groups of individually within the works area and in the close proximity to prevent from being
damaged and disturbed
during construction.
A sign identifying the site shall be attached to the fence and flagging
tape shall be attached to the individuals to visualize their locations. |
area/ During construction |
|
|
|
|
|
|
|
S9.7 and S9.10 |
A specification for fencing and demarcating individuals of Marsdenai lachnostoma (or other flora species of conservation interest, if found) adjacent to the proposed alignment of the flexible barriers will be prepared
to protect the species. |
Slope mitigation works area/ During construction |
Contractor(s) |
|
✓ |
|
N/A |
- |
|
S9.7 |
Induction training shall also be provided to all site personnel in order
to brief them on this flora of conservation interest including the locations and their importance. |
Slope mitigation works area/ During construction |
Contractor(s) |
|
✓ |
|
N/A |
- |
|
S9.7 |
The resident site supervisory staff will closely monitor the conditions of concerned individuals during construction of flexible barriers in the close proximity. |
Slope mitigation works area/ During construction |
Contractor(s) |
|
✓ |
|
N/A |
- |
|
S9.7 |
Erect fences along the boundary of the works area before the commencement of works to prevent vehicle movements and encroachment of personnel onto adjacent areas. |
All area/ During construction |
Contractor(s) |
|
✓ |
|
Implemented |
- |
|
S9.7 |
Regularly check the work site boundaries
to ensure that they are not breached and that damage does not occur to surrounding areas. |
All area/ During construction |
Contractor(s)/ Environmental Team (ET) |
|
✓ |
|
Implemented |
- |
|
S9.7 |
Avoid any damage
and disturbance, particularly those caused by filling and illegal dumping, to the surrounding habitats through proper management of waste disposal. |
All area/ During construction |
Contractor(s) |
|
✓ |
|
Implemented |
- |
|
EIA Reference |
Recommended Environmental Protection Measures/ Mitigation Measures |
Objectives of the recommended measures & main concerns to address |
Implementation Agent |
Implementation Stage |
Implementation Status |
Relevant Legislation & Guidelines |
||
|
D |
C |
O |
||||||
|
S9.7 |
Reinstate temporarily affected areas, particularly the habitats of plantation and shrubland- grassland immediately after completion of construction works, through on-site tree/shrub planting. The tree/shrub species will be chosen with reference to those in the surrounding area. |
All area/ During construction |
Contractor(s) |
|
✓ |
|
N/A |
- |
|
S9.7 |
Affected habitats within the Clear Water Bay Country Bay shall be
reinstated
by
hydro-seeding and planting of climbers and native shrub seedlings where practical upon completion of the slope mitigation works. |
All area/ During construction |
Contractor(s) |
|
✓ |
|
N/A |
- |
Note:
D ¡V Design stage C ¡V Construction O ¡V Operation
|
EIA Reference |
Recommended Environmental Protection Measures/ Mitigation Measures |
Objectives of the recommended measures & main concerns to address |
Implementation Agent |
Implementation Stage |
Implementation Status |
Relevant Legislation & Guidelines |
||
|
D |
C |
O |
||||||
|
|
Landscape & Visual |
|||||||
|
S11.10 & 11.11 |
The construction area and area allowed for temporary structures, such as the contractor¡¦s office, will be minimized to a practical minimum. (MM1) |
All area/ Detailed design/ During construction/ During operation |
WSD/ Contractor(s) |
✓ |
✓ |
✓ |
Implemented |
- |
|
S11.10 & 11.11 |
At the detailed design stage,
the design team will seek to minimize the landscape footprint
of
the Project and above ground facilities,
while satisfying all other requirements. (MM2) |
All area/ Detailed design/ During construction/ During operation |
WSD/ Contractor(s) |
✓ |
✓ |
✓ |
Implemented |
- |
|
S11.10 & 11.11 |
Design principles will be adopted to take into account the surrounding
area, particularly Clear Water Bay Country Park behind and the nearby waterfront, with due consideration given
to: - green roofs where practical (ie without equipment on the roof); - roadside planting; - aesthetic treatment of all structures; - vertical greening; screen planting along application site; and - landscape enhancement with amenity planting where practical including planting along the edge (site boundary) fence
with native shrubs where feasible, - to reduce their visual impact and blend them into the surrounding landscape. (MM3) |
All area/ Detailed design/ During construction/ During operation |
WSD/ Contractor(s) |
✓ |
✓ |
✓ |
Implemented |
- |
|
S11.10 & 11.11 |
All trees within the Project Site or
the potential slope mitigation works area will be carefully protected during construction according
to DEVB TCW No. 10/2013 ¡V Tree Preservation (MM4) |
All area/ Detailed design/ During construction/ During operation |
WSD/ Contractor(s) |
✓ |
✓ |
✓ |
Implemented |
ETWB TCW No. 3/2006 - Tree Preservation. |
|
S11.10 & 11.11 |
No tree within the Country Park will be felled. Trees within the
Site unavoidably affected
by the works will be transplanted where necessary and practical. For trees that need to be felled, compensatory planting will be provided
to the satisfaction of relevant Government departments. |
All area/ Detailed design/ During construction/ During operation |
WSD/ Contractor(s) |
✓ |
✓ |
✓ |
Implemented |
DEVB TC(W)
No. 10/2013 |
|
EIA Reference |
Recommended Environmental Protection Measures/ Mitigation Measures |
Objectives of the recommended measures & main concerns to address |
Implementation Agent |
Implementation Stage |
Implementation Status |
Relevant Legislation & Guidelines |
||
|
D |
C |
O |
||||||
|
|
A compensatory tree planting proposal including locations of tree compensation will
be submitted to seek relevant government department¡¦s approval, in accordance with DEVB TC(W) No. 10/2013. (MM5) |
|
|
|
|
|
|
|
|
S11.10 & 11.11 |
Any slope mitigation works necessary to address natural terrain hazards, will be minimized to minimize any potential environmental impact to the Country Park e.g. soil nailing and rock stabilization will aim to avoid existing trees e.g.
should any restoration of vegetation be necessary, the best planting
matrix with native species will be established, with the aim of resembling the existing vegetation. (MM6) |
All area/ Detailed design/ During construction/ During operation |
WSD/ Contractor(s) |
✓ |
✓ |
✓ |
N/A |
|
|
S11.10 & 11.11 |
Dredging works for the installation of
intake structures and outfall diffusers should be minimized to avoid
or reduce any potential environmental impacts to as low as reasonably practicable (ALARP). The intake and outfall structures (e.g. intake openings and diffuser heads) will be prefabricated and transferred
to site for installation. (MM7) |
All area/ Detailed design/ During construction/ During operation |
WSD/ Contractor(s) |
✓ |
✓ |
✓ |
N/A |
|
|
S11.10 & 11.11 |
All night-time lighting will be reduced to a practical minimum both in terms of number of level and will be hooded and directional. (MM8)units and lux level and
will be hooded and directional. (MM8) |
All area/ Detailed design/ During construction/ During operation |
WSD/ Contractor(s) |
✓ |
✓ |
✓ |
Implemented |
- |
Note:
D ¡V Design stage C ¡V Construction O ¡V Operation
|
EIA Reference |
Recommended Environmental Protection Measures/ Mitigation Measures |
Objectives of the recommended measures & main concerns to address |
Implementation Agent |
Implementation Stage |
Implementation Status |
Relevant Legislation & Guidelines |
||
|
D |
C |
O |
||||||
|
|
Landfill Gas Hazard |
|||||||
|
S12.7 |
During all works,
safety procedures should
be implemented to minimise the risks of fires and explosions, asphyxiation of workers and toxicity effects resulting from contact with contaminated soil and groundwater. |
All area/ Detailed design/ During construction/ During operation |
Contractor(s) |
✓ |
✓ |
✓ |
Implemented |
- |
|
S12.7 |
During trenching and excavation as well as creation of confined spaces at near
to or below ground level, precautions should be clearly laid down and rigidly Gas detection equipment and appropriate breathing apparatus should be available and used when entering
confined spaces or trenches
deeper than 1 metre. |
All area/ Detailed design/ During construction/ During operation |
Contractor(s) |
✓ |
✓ |
✓ |
Implemented |
|
|
S12.7 |
The Contractor should
make the workers are aware of potential hazards of working
in confined spaces
(any chamber, manhole
or culvert which is large enough to permit
access to personnel). Such work in confined spaces is controlled by the
Factories and Industrial Undertakings (Confined Spaces) Regulations of the Factories and Industrial Undertakings Ordinance. Following the Safety Guide to Working in Confined Spaces ensures compliance
with the above regulations. |
All area/ Detailed design/ During construction/ During operation |
Contractor(s) |
✓ |
✓ |
✓ |
Implemented |
|
|
S12.7 |
Safety officers, specifically trained with regard to landfill gas and
leachate related hazards and the appropriate actions to take in adverse circumstances, should be present
on the site throughout the works, in particular, when works are undertaken below grade. |
All area/ Detailed design/ During construction/ During operation |
Contractor(s) |
✓ |
✓ |
✓ |
Implemented |
|
|
S12.7 |
All personnel who work on
site and all visitors to the site should be made aware of the possibility of ignition of gas in the vicinity of the works, the possible presence of contaminated water and the need to avoid physical
contact with it. |
All area/ Detailed design/ During construction/ During operation |
Contractor(s) |
✓ |
✓ |
✓ |
Implemented |
|
|
EIA Reference |
Recommended Environmental Protection Measures/ Mitigation Measures |
Objectives of the recommended measures & main concerns to address |
Implementation Agent |
Implementation Stage |
Implementation Status |
Relevant Legislation & Guidelines |
||
|
D |
C |
O |
||||||
|
S12.7 |
Monitoring for landfill gas should be undertaken in all excavations, manholes, chambers (particularly during pipe jacking) and any confined spaces through the use of an intrinsically safe portable instrument, appropriately calibrated and capable of measuring the concentrations of methane. carbon dioxide and oxygen. |
All area/ Detailed design/ During construction/ During operation |
Contractor(s) |
✓ |
✓ |
✓ |
Implemented |
|
|
S12.7 |
Monitoring frequency and areas to be monitored should be specified prior to commencement of groundwork, either by the Safety Officer, or by an appropriately qualified person. All measurements should be recorded and documented. |
All area/ Detailed design/ During construction/ During operation |
Contractor(s) |
✓ |
✓ |
✓ |
Implemented |
|
|
S12.7 |
Proceed drilling with adequate care and precautions against the potential hazards which may be encountered. |
All area/ Detailed design/ During construction/ During operation |
Contractor(s) |
✓ |
✓ |
✓ |
Implemented |
|
|
S12.7 |
Prior to the commencement of the site works, the drilling contractor should devise a 'method- of- working' statement covering all normal and emergency procedures (including but not limited to number of operatives,
experience and special skills of operatives,
normal method of operations, emergency procedures, supervisors responsibilities, storage and use of safety equipment, safety procedures and signs, barriers and guarding). The site supervisor and all operatives
must be familiar with this statement. |
All area/ During construction/ During operation |
Contractor(s) |
✓ |
✓ |
✓ |
N/A |
|
|
S12.7 |
Where below ground service entries are necessary to the Incoming Switchgear Room,
132 kV Substation and Chlorine Store (I) and (II), the entry point should be sealed
to prevent gas
entry. In addition, any below grade cable trenches entering the Incoming Switchgear Room and 132 kV Substation can become the pathway for landfill gas and hence grilled metal covers should |
All area/ Detailed design/ During construction/ During operation |
Contractor(s) |
✓ |
✓ |
✓ |
N/A |
|
|
EIA Reference |
Recommended Environmental Protection Measures/ Mitigation Measures |
Objectives of the recommended measures & main concerns to address |
Implementation Agent |
Implementation Stage |
Implementation Status |
Relevant Legislation & Guidelines |
||
|
D |
C |
O |
||||||
|
|
be used. |
|
|
|
|
|
|
|
|
S12.7 |
It is recommended regular landfill
gas monitoring
should be carried out at the Incoming Switchgear Room, 132 kV Substation and Chlorine Store (I) and (II). The monitoring frequency will be monthly
for the first year of operation. If the
monitoring results show no sign of landfill gas migration, reduce the monitoring frequency to once every six months. |
All area/ Detailed design/ During construction/ During operation |
Contractor(s) |
✓ |
✓ |
✓ |
N/A |
|
|
S12.7 |
The manholes
and utility pits
within the Project Site and along the fresh water mains.
Each manhole/ utility pit should be monitored
with two measurements (at mid depth and base). Each measurement should be monitored for a minimum of 10 minutes. A steady reading
and peak reading
should be recorded at each manhole/ utility
pit and for each measurement. The need for venting
the manhole/ utility pit and further monitoring will be reviewed after the initial monitoring. |
All area/ Detailed design/ During construction/ During operation |
Contractor(s) |
✓ |
✓ |
✓ |
Impllemented |
|
|
S12.7 |
All construction, operation and maintenance personnel working on-site as well
as visitors should be made aware of the hazards of landfill gas and its possible presence on-site.
This should be achieved through a combination of posting warning signs in prominent places and
also by access to detailed information on landfill
gas hazards and the designs and procedural means by which these hazards are being minimised on-site. |
All area/ Detailed design/ During construction/ During operation |
Contractor(s) |
✓ |
✓ |
✓ |
Implemented |
|
Note:
D ¡V Design stage C ¡V Construction O ¡V Operation
Impact Monitoring Schedule of the Reporting Month (BLANK)
Event/Action Plan for Noise
Exceedance

Noise Monitoring Equipment Calibration Certificate
(BLANK)
Event/Action Plan for Water Quality Exceedance



Contract No. 13/WSD/17
Environmental Management Plan for Design, Build and Operate
First Stage of Tseung Kwan O Desalination Plant
Appendix F - Monthly Summary Waste Flow Table
Name of Department: WSD Contract No.:
13/ESD/17
Monthly Summary Waste Flow Table for 2020 (year)
|
Month |
Actual Quantities of Inert C&D Materials Generated Monthly |
Actual Quantities of C&D Wastes Generated Monthly |
|||||||||
|
Total Quantity Generated |
Hard Rock
and Large
Broken Concrete |
Reused in the Contract (see Note 6) |
Reused in other Projects |
Disposed as Public Fill |
Imported Fill |
Metals |
Paper/ cardboard packaging |
Plastics (see Note 3) |
Chemical Waste |
Others, e.g. general refuse |
|
|
(in '000kg) |
(in '000kg) |
(in '000kg) |
(in '000kg) |
(in '000kg) |
(in '000kg) |
(in '000 kg) |
(in '000kg) |
(in '000kg) |
(in '000kg) |
(in '000kg) |
|
|
Jan |
0.000 |
0.000 |
0.000 |
0.000 |
0.000 |
0.000 |
0.000 |
0.000 |
0.000 |
0.000 |
0.000 |
|
Feb |
0.000 |
0.000 |
0.000 |
0.000 |
0.000 |
0.000 |
0.000 |
0.000 |
0.000 |
0.000 |
0.000 |
|
Mar |
0.000 |
0.000 |
0.000 |
0.000 |
0.000 |
0.000 |
0.000 |
0.000 |
0.000 |
0.000 |
0.420 |
|
Apr |
0.000 |
0.000 |
0.000 |
0.000 |
0.000 |
0.000 |
0.000 |
0.000 |
0.000 |
0.000 |
2.400 |
|
May |
0.000 |
0.000 |
0.000 |
0.000 |
0.000 |
0.000 |
5.900 |
0.000 |
0.000 |
0.000 |
12.570 |
|
Jun |
1081.950 |
0.000 |
0.000 |
0.000 |
1081.950 |
0.000 |
0.000 |
0.000 |
0.000 |
0.000 |
34.160 |
|
Sub-total |
1081.950 |
0.000 |
0.000 |
0.000 |
1081.950 |
0.000 |
5.900 |
0.000 |
0.000 |
0.000 |
49.550 |
|
Jul |
|
|
|
|
|
|
|
|
|
|
|
|
Aug |
|
|
|
|
|
|
|
|
|
|
|
|
Sep |
|
|
|
|
|
|
|
|
|
|
|
|
Oct |
|
|
|
|
|
|
|
|
|
|
|
|
Nov |
|
|
|
|
|
|
|
|
|
|
|
|
Dec |
|
|
|
|
|
|
|
|
|
|
|
|
Total |
1081.950 |
0.000 |
0.000 |
0.000 |
1081.950 |
0.000 |
5.900 |
0.000 |
0.000 |
0.000 |
49.550 |
Notes: (1) The performance targets are given in Section 1.69 of Specification B
(2) The waste flow table shall also include C&D materials that are specified in the Contract to be imported for use at the Site.
(3) Plastics refer to plastic bottles/containers, plastic sheets/ foam from packaging material
page 1 of 2
Site Inspection Proforma













































Statistical Summary of Environmental Complaints
|
Reporting Period |
Environmental Complaint Statistics |
||
|
Frequency |
Cumulative |
Complaint Nature |
|
|
01 June 2020 - 30 June 2020 |
0 |
0 |
N/A |
Statistical Summary of Environmental Summons
|
Reporting Period |
Environmental Summons Statistics |
||
|
Frequency |
Cumulative |
Details |
|
|
01 June 2020 - 30 June 2020 |
0 |
0 |
N/A |
Statistical Summary of Environmental Prosecution
|
Reporting Period |
Environmental Prosecution Statistics |
||
|
Frequency |
Cumulative |
Details |
|
|
01 June 2020 - 30 June 2020 |
0 |
0 |
N/A |
Impact Monitoring Schedule of Next Reporting
Month (BLANK)